Открытая система
категория
категория
На сегодняшний день это самый распространенный тип кассетных потолков. Свое название открытая подвесная система получила из-за того, что направляющие, к которым затем крепятся кассеты, остаются видимыми после монтажа кассет и представляют собой элемент декора.
Подвесные потолки с открытой подвесной системой имеют модульную структуру, что обеспечивает большую гибкость при проектировании и декорировании.
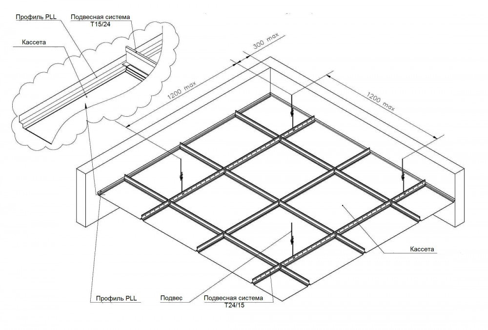
Кассетные потолки состоят из системы кронштейнов (подвесов), прикрепленных к перекрытию. В свою очередь, к подвесам крепятся направляющие (продольные и поперечные), образующие ячейки несущего каркаса и обеспечивающие жесткость всей конструкции. Декоративные алюминиевые кассеты устанавливаются в ячейках каркаса.
В открытой подвесной системе в качестве направляющих используют так называемый Т-профиль (Т24– ширина 24мм).
Эти потолочные системы пользуются большим спросом благодаря своей практичности и функциональности. Алюминиевый кассетный потолок – это современный отделочный материал, обладающий рядом преимуществ:
-
Пожаробезопасность
-
Влагостойкость
-
Экологичность
-
Долговечность
-
Надежность (система снабжена фиксирующими «лепестками», что обеспечивает возможность увеличения нагрузок на систему в процессе эксплуатации)
-
Удобство монтажа
-
Не содержит сырья вторичной переработки
-
Оптимальный теплообмен
-
Покрытие потолка 100%
-
Положительное влияние на комфорт
-
100% перерабатываемый продукт
Данный тип потолков с успехом применяется для отделки практически любых помещений.
Данная система особенно рекомендуется для отделки:
-
Медицинских, детских и образовательных учреждений
-
Жилых помещений и офисов
-
Торговых и выставочных запасов и павильонов
-
Аэропортов и вокзалов
-
Спортивных комплексов.

Кассетные потолки состоят из системы кронштейнов (подвесов), прикрепленных к перекрытию. В свою очередь, к подвесам крепятся направляющие (продольные и поперечные), образующие ячейки несущего каркаса и обеспечивающие жесткость всей конструкции. Декоративные алюминиевые кассеты устанавливаются в ячейках каркаса.

ТИПЫ КАССЕТ (типы кромок)

РАЗМЕРЫ, мм
|
Кассета |
Материал |
|
595х595 |
0,4-0,7 Alu |
|
295х1195 |
0,6-0,9 Alu |
|
595х1195 |
0,6-0,1 Alu |
РАСХОД МАТЕРИАЛА НА M2
|
№ |
Наименование изделия |
Расход на 1 м2 |
|||||||
|
Ед.изм. |
595*595 |
295*1195 |
595*1195 |
||||||
|
Сх.1 |
Сх.2 |
Сх.3 |
Сх.1 |
Сх.2 |
Сх.3 |
||||
|
1 |
Кассета |
шт. |
2,78 |
2,78 |
1,39 |
||||
|
2 |
Несущая направляющая 3,7м |
м.п. |
0,83 |
0,83 |
3,34 |
0,83 |
0,83 |
1,67 |
0,83 |
|
3 |
Поперечная направляющая 1,2м |
м.п. |
1,67 |
3,34 |
-- |
3,34 |
1,67 |
-- |
1,67 |
|
4 |
Поперечная направляющая 0,6м (0,3м) |
м.п. |
0,83 |
-- |
0,83 |
-- |
-- |
0,83 |
-- |
|
5 |
Подвес |
компл. |
0,9 |
0,9 |
3,6 |
0,9 |
0,9 |
1,8 |
0,9 |
|
6 |
Уголок |
м.п. |
по периметру помещения |
||||||
Расход других комплектующих зависит от проекта.

Возможны и другие схемы монтажа, для большей информации обращайтесь в наш отдел продаж.
ВОЗМОЖНОСТИ ПЕРФОРАЦИИ
Для того чтобы обеспечить оптимальный акустический контроль в помещениях, кассеты могут быть перфорированными. В качестве стандартной функции, перфорированные кассеты снабжены звукопоглощающим нетканым материалом наклеенным на внутренней поверхности кассеты.
Перфорация может быть прямая и диагональная.
Возможны и другие варианты перфорации (квадратные отверстия) и даже масштабные рисунки (для большей информации обращайтесь в наш отдел продаж).

ПОЖАРОБЕЗОПАСНОСТЬ (ОГНЕСТОЙКОСТЬ)
Все системы потолков CESAL относятся к материалам групы C0 (негорючие).
Область применения потолков CESAL согласно нормативному документу в строительстве NCM E.03.02-2014 (MCH 21-01-2014) «Пожарная безопасность зданий и сооружений»
Для больших проектов возможно покраска в любой цвет "RAL Classic"
Сертификаты
| Сертификат | дата |
|---|---|
|
|
2020-03-13 |
|
|
2017-03-22 |
|
|
2017-03-22 |