Casetat deschis
Categorie
Categorie
Până în prezent, acesta este cel mai răspândit tip de tavan casetat. Sistemul suspendat deschis și-a căpătat denumirea sa datorită faptului că profilurile, de care apoi sunt fixate casetele, rămân vizibile după montarea casetelor și reprezintă un element de decor.
Tavanele suspendate cu sistem deschis au o structură modulară, ceea ce oferă o mai mare flexibilitate la proiectare și decorare.
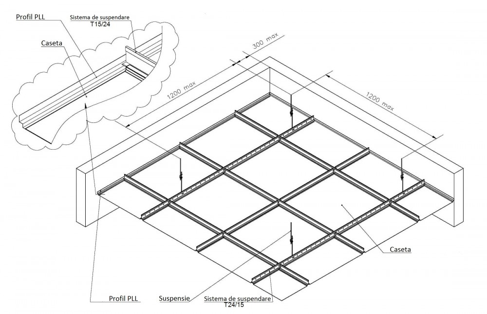
Tavanele casetate sunt compuse dintr-un sistem de suporturi (tije) fixate de tavan. La rândul lor, de tije sunt fixate ghidajele (longitudinale și transversale), care formează celulele carcasei de susținere și asigură rigiditatea întregii construcții. Casetele decorative din aluminiu se instalează în celulele carcasei.
În sistemul de tip deschis, în calitate de ghidaje se utilizează așa-numitul profil- T (T24- lațimea 24mm).
Aceste sisteme de tavan se bucură de o cerere mare grație practicității și funcționalității lor. Tavanul casetat din aluminiu - este un material de finisare modern, care demonstrează o serie de avantaje:
- Siguranța antiincendiară
- Rezistența la umiditate
- Ecologic
- Durabilitate
- Fiabilitate (sistemul este echipat cu „petale“ de blocare, ceea ce face posibilă creșterea sarcinii asupra sistemului în procesul de exploatare)
- Comoditate la instalare
- Nu conține elemente din materie primă reciclată
- Asigură un schimb optim de căldură
- Acoperirea plafonului la 100%
- Impact pozitiv asupra confortului
- 100% produs reciclabil
- Acest tip de tavan se folosește cu succes pentru decorarea la orice tip de încăperi.
- Sistemul este recomandat in special pentru finisarea:
- Instituțiilor medicale, pentru copiii și de învățământ
- Spațiilor rezidențiale și oficiilor
- Halelor și sălilor comerciale și de expoziție
- Aeroporturilor și gărilor
- Complexelor sportive.

Tavanele casetate sunt compuse dintr-un sistem de suporturi (tije) fixate de tavan. La rândul lor, de tije sunt fixate ghidajele (longitudinale și transversale), care formează celulele carcasei de susținere și asigură rigiditatea întregii construcții. Casetele decorative din aluminiu se instalează în celulele carcasei.

TIPURI DE CASETĂ (tipuri de muchii)

DIMENSIUNI, mm
|
Caseta |
Material |
|
595х595 |
0,4-0,7 Al |
|
295х1195 |
0,6-0,9 Al |
|
595х1195 |
0,6-1,0 Al |
CONSUM MATERIALE /M2
|
№
|
Denumire |
Consum la 1 м2 |
|||||||
|
Unit. |
595*595 |
295*1195 |
595*1195 |
||||||
|
Sc.1 |
Sc.2 |
Sc.3 |
Sc.1 |
Sc.2 |
Sc.3 |
||||
|
1 |
Caseta |
buc. |
2,78 |
2,78 |
1,39 |
||||
|
2 |
Profil principal 3,7м |
m.l. |
0,83 |
0,83 |
3,34 |
0,83 |
0,83 |
1,67 |
0,83 |
|
3 |
Profil transversal 1,2м |
m.l. |
1,67 |
3,34 |
-- |
3,34 |
1,67 |
-- |
1,67 |
|
4
|
Profil secundar 0,6м (0,3м) |
m.l. |
0,83 |
-- |
0,83 |
-- |
-- |
0,83 |
-- |
|
5 |
Suspensie |
compl. |
0,9 |
0,9 |
3,6 |
0,9 |
0,9 |
1,8 |
0,9 |
|
6 |
Profil perimetral |
m.l. |
Perimetrul incaperii |
||||||
Consumul altor elemente depind de proiect.

Există și alte scheme de montaj, pentru mai multe informații vă rugăm să contactați departamentul nostru de vânzări.
POSIBILITATEA DE PERFORARE
Pentru a asigura un control acustic optim în încăpere, casetele pot fi perforate. În calitate de funcție standard, casetele perforate sunt prevăzute cu un material nețesut fonoabsorbant, lipit pe suprafața interioară a casetei.
Perforarea poate fi dreaptă și diagonală.
Sunt posibile și alte variante de perforare (găuri pătrate) și chiar desene la scară (pentru mai multe informații vă rugăm să contactați departamentul nostru de vânzări).

SIGURANȚĂ ANTIINCENDIARĂ (REZISTENȚĂ LA FOC)
Toate sistemele de tavane CESAL se referă la materialele din grupul C0 (neinflamabile).
Domeniul de utilizare a tavanelor CESAL conform documentului normativ în construcții NCM E.03.02-2014 (MCH 21-01-2014) “Siguranța antiincendiiară a clădirilor și structurilor „
Pentru proiecte mari este posibil de vopsit în orice culoare. "RAL Classic"
Certificate
| Certificat | Data |
|---|---|
|
|
2020-03-13 |
|
|
2017-03-22 |
|
|
2017-03-22 |